------------------------------------------------------------------
accueil - scanner 3d - aménagement industriel - architecture résidentielle - Dessin 2d et 3d - contact








Si vous avez des besoins en dessin technique, nous pouvons réaliser ces dessins en 2D ou 3D, selon vos critères et besoins.

Dessins de procédé
- Illustration du procédé (p&id) de l'usine avec la tuyauterie, câblage, les équipements, instruments, etc.

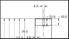
Dessins de production
- Dessins de composantes à fabriquer.

Dessins pour entretien
- Dessins illustrant divers entretiens à faire pour des équipements ou pour des services dans l'usine.

Dessins en vue explosée
- Illustrer en 3d des composantes pour manuels de pièces ou d'assemblage.
design et technologie alie inc
Nous pouvons travailler à partir d’anciens dessins, de croquis ou en mesurant directement le ou les objet(s).